4928 Novak Lane, Fairfax, VA, 22030
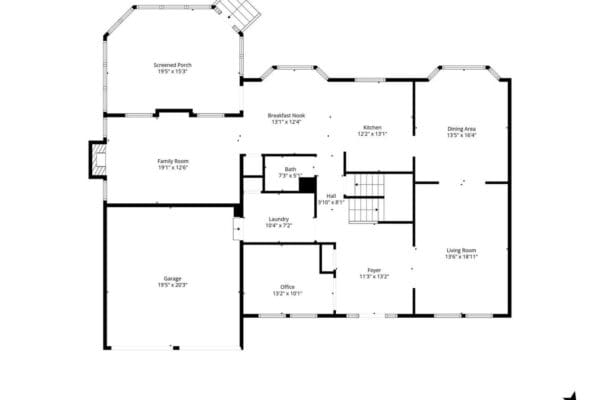
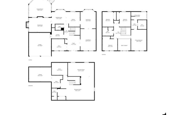
Set on nearly 1.5 acres on a peaceful cul-de-sac in a sought-after Fairfax neighborhood within the Woodson High School pyramid, this beautifully maintained colonial offers nearly 4,500 square feet across three finished levels, combining classic design with thoughtful updates and inviting indoor-outdoor living. The main level welcomes you with a spacious foyer entry and features hardwood floors. A formal, sunlit living room provides a bright and elegant space for entertaining or relaxing. A dedicated office is ideal for working from home. The formal dining room showcases classic moldings and a large picture window overlooking the expansive backyard, creating a beautiful setting for gatherings.
The kitchen features custom natural cherry cabinetry, updated countertops, tile backsplash, double ovens, a pantry cabinet, and an eat-in area with a charming bay window. The cooktop can easily be converted to gas. Just off the breakfast area, the family room offers hardwood floors, skylights, and a white-washed brick fireplace that anchors the space. Step outside to the screened porch, designed for multi-season enjoyment with skylights, a ceiling fan, and a built-in bar, all overlooking the stone patio and private backyard. A powder room and convenient main-level laundry complete this level. Upstairs, the primary suite offers a custom walk-in closet and a beautifully updated bath with marble counters, basket-weave tile shower, and a soaking tub. Three additional bedrooms with carpeting, two linen closets, and an updated hall bath with double sinks and granite counters provide comfortable accommodations.
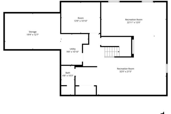
The finished lower level, renovated in 2006, expands the home’s living space with a large recreation room, built-in entertainment center, recessed lighting, a granite-topped bar with dishwasher and refrigerator, a full bath with walk-in shower, bonus room, game closet, under-stair storage, and a large utility/storage room with built-in shelving. The home sits on almost 1.5 acres and backs to trees. There is a two-car garage, plus ample parking in the driveway. Just down the road is Brentwood Park with a playground, pond, and walking trails. Major updates include architectural shingle roof (2020), 6″ gutters plus gutter guards, high-efficiency HVAC with humidifier (2021), exterior paint (2023), driveway repaved in 2024 and sealed in 2025, and most window glass replaced in 2023. A two-car garage and storage shed add additional convenience. Offering generous space, thoughtful updates, and beautiful outdoor living areas, this exceptional property provides the perfect balance of comfort, functionality, and location in the heart of Fairfax. The location is unbeatable, with easy access to shopping and restaurants in Fairfax Corner, Fair Lakes and Fairfax City, and major commuting routes such as I-66, Rts. 29 and 50, and Fairfax County Parkway.
































































































