2926 Fort Lee St., Herndon, VA 20171 – $950,000

Meticulously maintained 4-bedroom, 2.5-bathroom home in the Folkstone community of Herndon, owned by same owners since 1987, situated on a generous 0.57 acre lot backing to open HOA green space. The exterior of the home is updated with an architectural shingle roof installed in 2023/2015 and freshly painted siding and trim (2026). The outdoor living areas are highlighted by a deck repainted in 2026 and an aggregate patio off the walkout basement, all surrounded by extensive, mature landscaping that provides seasonal color through a variety of perennials, flowering trees like Japanese dogwoods, and several fruit-bearing plants including a fig tree.
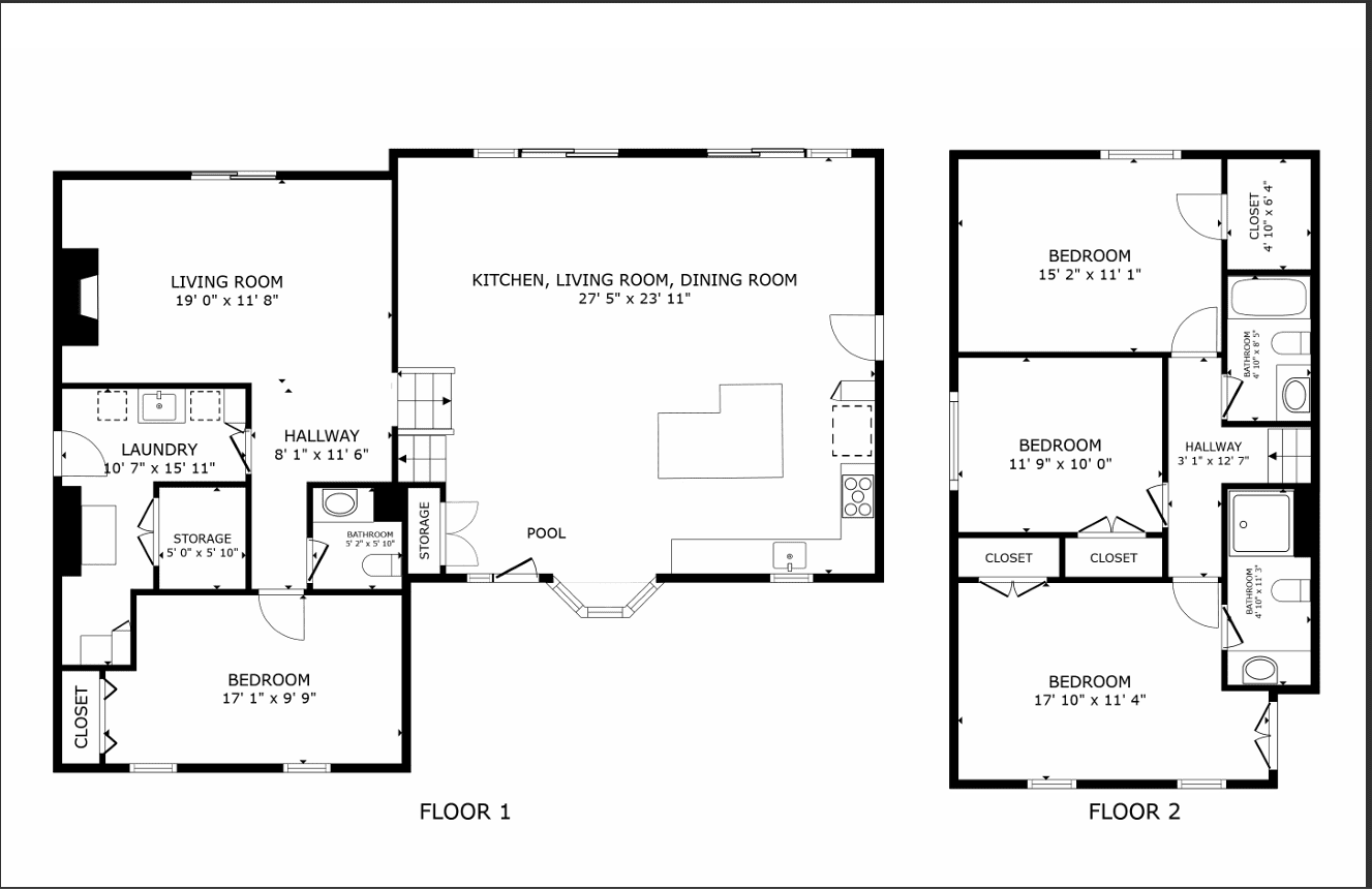
The main level features a bright, open floor plan with hardwood floors refinished in 2023 and an updated maple cabinet kitchen complete with quartz countertops (2021) and high-end KitchenAid stainless appliances, including a dual-oven gas range. Natural light pours through a kitchen skylight (2023) and bay window (replaced between 2018-2025). The living areas are further enhanced by crown molding, updated baseboards, and a gas fireplace (serviced in 2026). More natural light and access to the deck come through the two sliding doors. Leading to the upper level is a refreshed staircase featuring new oak treads and modern railings installed in 2023.The upper level updates include fresh paint (2026), refinished hardwood floors and baseboards replaced in 2026. The primary suite offers a fully renovated ensuite bathroom with a frameless sliding door shower installed in 2019. Custom Italian ceramic accent tiles reflecting the love of home’s gardens. Two additional bedrooms, one with a huge walk-in closet, share a second full bathroom that was completely renovated between 2017 and 2018. On the lower level, the finished walkout basement serves as a versatile recreation space with built-in shelves, wood-burning fireplace and Anderson sliding door to patio. The lower level is updated with new carpeting in 2021. There is a large fourth bedroom with proper English-style window egress and lovely powder room. The laundry room on this level was recently painted and fitted with new sheet vinyl flooring. The home’s major systems have been modernized for efficiency and peace of mind. The property was converted to gas fuel and now features a Trane HVAC system and a gas-fueled water heater, both installed in 2018 and is routinely maintained by All-Tech Services.
This property is zoned for the prestigious Oakton High School pyramid including Carson Middle School and Crossfield Elementary School. It offers convenient access to route 28, Reston Parkway, West Ox Rd, Lawyers Rd, Dulles Toll Road and the Northern Virginia technology corridor.
















































